Kursy walut NBP: USD 3,98 | EUR 4,32 | CHF 4,53 |
Strona główna | Mapa serwisu | Zgłoś ofertę | Polityka plików cookies| Kontakt
Wyszukiwarka
Numer oferty
Miejscowość lub dzielnica
Ulica
Cena
Powierzchnia
Liczba pokoi
 
Oferty specjalne

Szczegóły oferty
Rodzaj oferty
mieszkanie ( sprzedaż )
Numer
1150/2737/OMS
Miasto
GRĄDY-WONIECKO
Cena
120 000 PLN kalkulator
Cena za mkw
1 435,58 PLN mkw
Powierzchnia
83.59 m2
Liczba pokoi
1
Liczba pięter
2
Stan
do wykonczenia
Droga dojazdowa
asfaltowa
Garaż
TAK
Komórka
TAK
Opis
Na sprzedaż mieszkanie w inwestycji BIAŁY DOM VIP 12 o powierzchni całkowitej 83,59m2, do własnej aranżacji wnętrz, w budynku wielorodzinnym w miejscowości Grądy-Woniecko 12, gmina Rutki.

Lokal mieszkalny położony jest na I kondygnacji budynku, składa się z
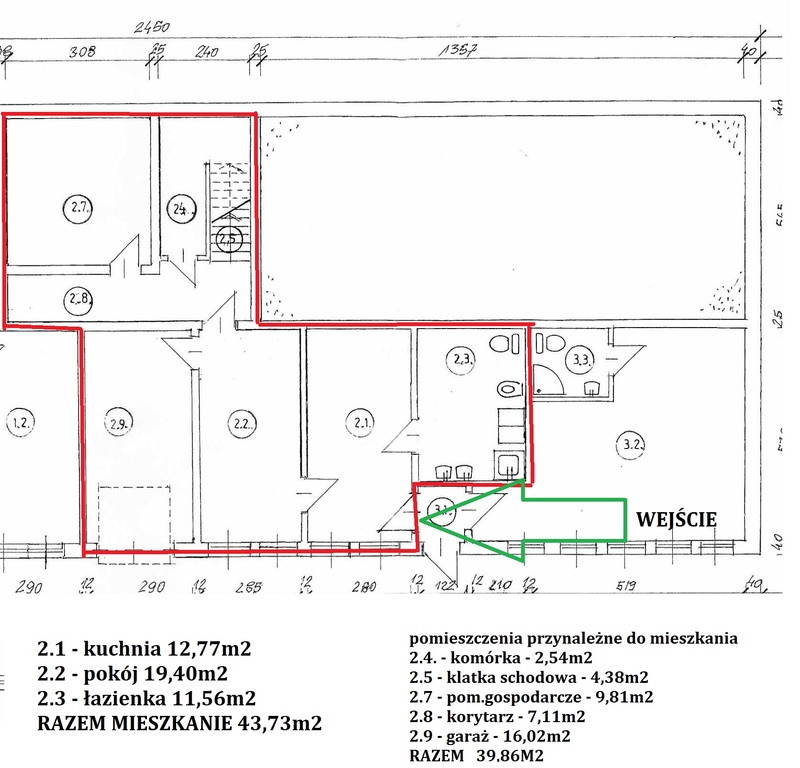
A) CZĘŚĆ MIESZKALNA O POW. 43,73M2
- kuchnia o pow. 12,77m2
- pokój o pow. 19,40m2
- łazienka o pow. 11,56m2

B) POMIESZCZENIA PRZYNALEŻNE (CZĘŚĆ NIEMIESZKALNA) O POW. 39,86M2
- komórka o pow. 2,54m2
- klatka schodowa o pow. 4,38m2
- pomieszczenie gospodarcze o pow. 9,81m2
- korytarz o pow. 7,11m2
- garaż o pow. 16,02m2

Budynek po remoncie kapitalnym, wykończony, docieplony styropianem z wykonaną nową elewacją. Nowe ściany wewnętrzne, nowy dach kryty blachą trapezową. Wymieniona całkowicie instalacja elektryczna, wodno-kanalizacyjna i centralnego ogrzewania.

Grądy Woniecko to malownicza miejscowość, położona w bliskim sąsiedztwie rzeki Narew. Otacza ją wiele atrakcyjnych terenów widokowych. Jedną z nich są Nadnarwiańskie Wydmy tworzące ścieżkę turystyczną na nizinnych dolinach rzecznych. Kolejną atrakcją regionu jest należąca do obszaru Natura 2000, Bagno Wizna stanowiąca rozległe silnie zatorfione obniżenie terenu.

Grądy-Woniecko - miejscowość w Polsce położona w województwie podlaskim, w powiecie zambrowskim, w gminie Rutki. Bardzo dobre połączenie z Warszawą (S8, 163km), Białymstokiem (S8, 57,8km), Łomżą (32km), Wizną (9km).

POWYŻSZA CENA OBEJMUJE ZAKUP LOKALU MIESZKALNEGO WRAZ Z POMIESZCZENIAMI PRZYNALEŻNYMI.

OSOBA DO KONTAKTU ADAM KARWOWSKI tel. +48 698506416

Jesteś zainteresowany?
Agent prowadzący
Mirosław Tyszka
Nr licencji pośrednika odpowiedzialnego zawodowo
203
Telefon
604227658/698506416
E-mail
nieruchomosci.lomza@wp.pl

TYTAN NIERUCHOMOŚCI
ul.Polowa 45
18-400 Łomża
tel.: 86-216 62 26
email: tytan_nieruchomosci@op.pl
fax: 86-216 62 26
Wyślij zapytanie
Imię i Nazwisko 
Telefon 
E-mail 
Treść zapytania 

Wyrażam zgodę na przetwarzanie moich danych osobowych przez firmę TYTAN NIERUCHOMOŚCI dla celów związanych z działalnością pośrednictwa w obrocie nieruchomościami, jednocześnie potwierdzam, iż zostałem poinformowany o tym, iż będę posiadać dostęp do treści swoich danych do ich edycji lub usunięcia.
Wyślij ofertę e-mailem
 

© 2026 TYTAN NIERUCHOMOŚCI. Wszystkie prawa zastrzeżone.